- 仲介手数料無料
- R1住宅認定(予定)
- アフターサービス付(2年)
- 住宅ローン控除利用可
お問合せ受付中
- 専有面積
- 65.08m²
- 所在地
- 東京都世田谷区用賀2-20-5
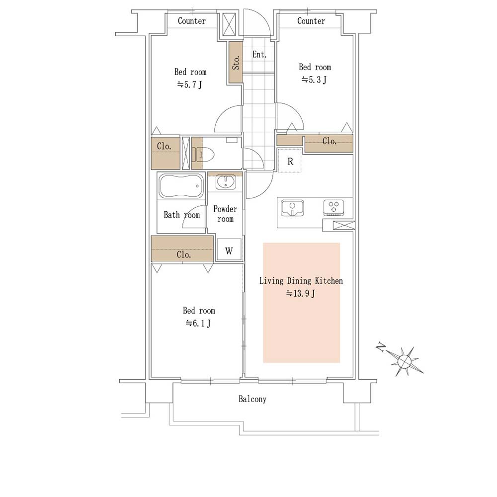
- 間取り
- 3LDK
- 交通
- 東急田園都市線「用賀」駅徒歩5分
- 価格
- 9,580万円
3LDK
◆南西向きの為、陽当り・風通し良好
◆対面カウンターキッチン採用のLDK約13.9帖、床暖房実装
◆主寝室約6.1帖、大型クローゼット付
※図面・方位は概略に付き、現況と相違する場合は現況を優先します。


■LD間接照明付き折り上げ天井
やわらかな間接光が、空間全体を上質で落ち着いた印象に。家具やインテリアを美しく引き立てる、計算された照明設計。※画像はイメージのため実際とは異なります。

■洗面ミラーキャビネット
三面鏡の裏側には、ブラシや化粧品、洗面小物を美しく収納できる機能的な収納スペースを確保。※画像はイメージのため実際とは異なります。

■ボウル一体型・人工大理石洗面台
継ぎ目のない美しさ。毎日のお手入れを、もっと簡単に。ボウル一体型・人工大理石洗面台。※画像はイメージのため実際とは異なります。

■3口ガラストップコンロ
毎日の掃除が、驚くほどスマートに。デザイン性と清掃性を両立した3口ガラストップコンロ。※画像はイメージのため実際とは異なります。
こちらは、リノベーション工事中の物件のため、下記モデルルームにてご案内を開催いたします。
◆◆◆「用賀」駅徒歩5分、南西向き3LDKプラン◆◆◆
~「渋谷」・「大手町」等、都心へダイレクトアクセス~
【LOCATION&RESIDENCE】
■東急田園都市線「用賀」駅徒歩5分
■駅から高低差の少ないフラットアプローチ
■「渋谷」駅へ直通15分、「大手町」駅へ直通33分
■世田谷ビジネススクエア・オーケー用賀駅前店など充実の生活利便性
■都心に住みながら「砧公園」の豊かな緑を享受できる上質な住環境
■世田谷ビジネススクエア徒歩約6分
■オーケー 用賀駅前店徒歩約6分
■用賀二丁目公園 徒歩約3分
■砧公園 徒歩約15分
【PLAN&EQUIPMENT】
■ゆとりある約65㎡の3LDKタイプ
■南西向き、日当り・風通し良好
■リビングダイニングには間接照明付き折り上げ天井
■玄関・廊下はMARAZZI社製磁器質大判タイル
■廊下は片面木目調の壁パネル
■リビングと一体感がある対面カウンターキッチンを採用
■お掃除がしやすいガラストップコンロ採用
■食器洗い乾燥機付き フィオレストーン天板 浄水器一体型水栓
■浴室換気乾燥機付ユニットバス
■安心のオートロックシステム
■外出時に便利な宅配ボックス付
【SUPREMOブランド】
■MORIMOTOによる最新デザインのリノベーション
■洗練された空間をつくりだすハイグレードな設備・仕様
※『SUPREMO(スプレーモ)』とは、デザイン、プランニング、
マテリアルや設備まで、都心のマンションディベロッパーとして培った
総合力と創造力でお届けするMORIMOTOのリノベーションブランドです。

用賀駅

砧公園

二子玉川駅前
Outline
- 所在地
- 東京都世田谷区用賀2-20-5
- 交通
- 東急田園都市線「用賀」駅徒歩5分
- 竣工年月
- 1998年4月
- リフォーム完成
- 2026年6月下旬
- 階/階建
- 2階/7階
- 駐車場
- 【月額】21,000円~25,000円
- 構造/総戸数
- 鉄筋コンクリート造/30戸
- 管理
- 全部委託
- 管理費
- 【月額】12,700円
- 敷地権利
- 所有権
- 修繕積立金
- 【月額】23,100円
- 売主
- 株式会社モリモト
お問い合わせフォーム
下の各項目にご記入いただき送信ボタンを押して下さい。
当ページにてお問い合わせ頂く前に株式会社モリモト個人情報保護方針をお読み下さい。
ご希望の時間帯をクリックしてください。
※担当者より具体的な日時をご連絡差し上げます。


















