- 仲介手数料無料
- R1住宅認定(予定)
- アフターサービス付(2年)
- 住宅ローン控除利用可
【新規リノベーション】堂々完成!
3/14(土)~22(日)完成お披露目会開催<予約制>
- 専有面積
- 73.24m²
- 所在地
- 東京都品川区大崎2-11-2
- 間取り
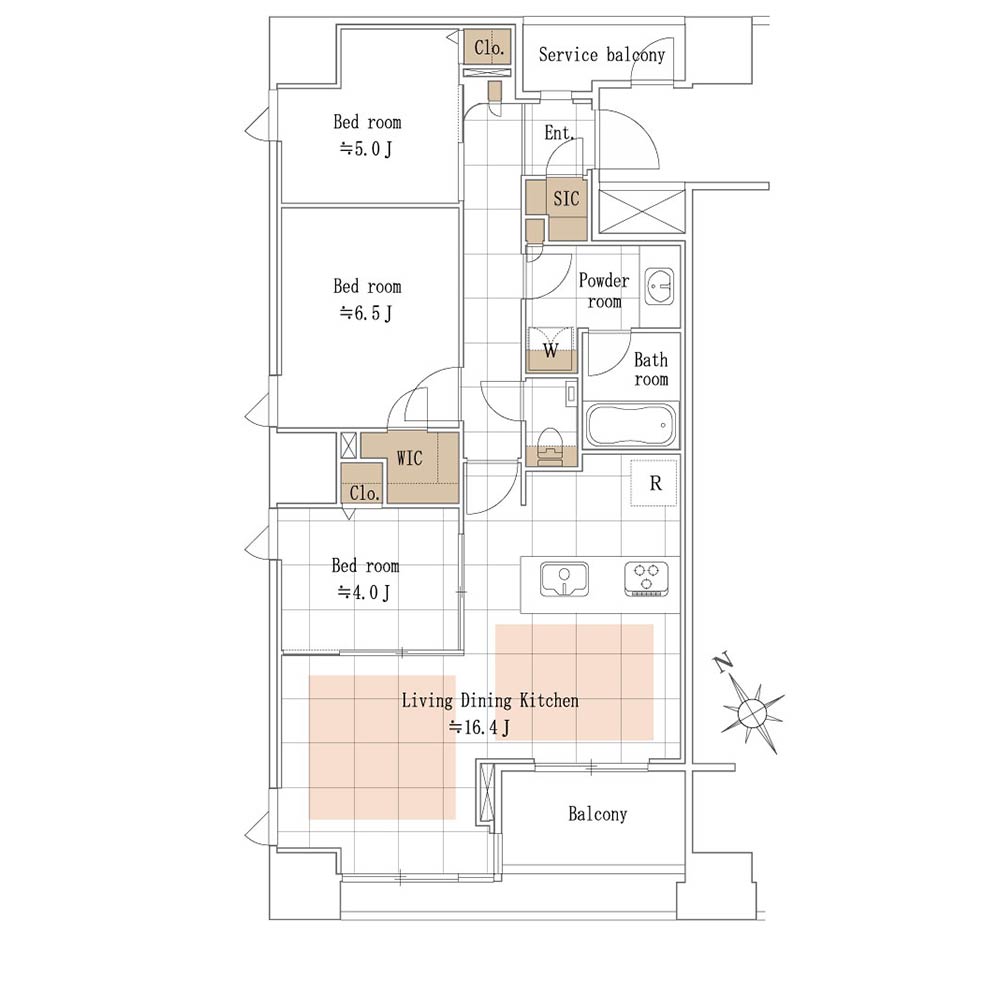
- 3LDK+WIC+SIC
- 交通
- JR山手線・埼京線・湘南新宿ライン・りんかい線「大崎」駅徒歩5分
- 価格
- 19,950万円
「大崎」駅ペデストリアンデッキ直結徒歩5分
~25階建 免震タワーレジデンス~
【LOCATION & RESIDENCE】
■JR山手線、埼京線、東京臨海高速鉄道「大崎」駅徒歩5分
■「大崎」駅からペデストリアンデッキで直通のアプローチ
■NIPPO分譲×清水建設・NIPPO建設共同企業体 施工
■免震構造25階建てのタワーレジデンス
■プライバシーの守られた内廊下設計
■2014年1月築
【PLAN×EQUIPMENT】
■25階建21階部分、眺望良好
■採光・通風に恵まれた南西×北西角住戸
■玄関・廊下・トイレ・洗面所はMARAZZI社製磁器質タイル
■木目調パネル張り (玄関・ホール片壁)
■LDは、間接照明付折上げ天井・天井カセットエアコン・床暖房
■キッチンフィオレストーン天板 浄水器一体型水栓 ディスポーザー、食洗機付
■WIC・SIC等充実の収納スペース
■ペット飼育可(規約あり)
■メールボックス・宅配ボックス付
■堅牢な直接基礎構造
■アウトフレーム逆梁ハイサッシ工法
【COMMON FACILITIES】
■コンシェルジュサービス
■ゲストルーム・多目的ルーム
■各階にダストステーション、24時間ゴミ出し可
■安心のダブルオートロック
■各階に防災倉庫を設置
■ペット足洗い場有り
【SUPREMOブランド】
■MORIMOTOによる最新デザインのリノベーション
■洗練された空間をつくりだすハイグレードな設備・仕様
※『SUPREMO(スプレーモ)』とは、デザイン、プランニング、
マテリアルや設備まで、都心のマンションディベロッパーとして培った
総合力と創造力でお届けするMORIMOTOのリノベーションブランドです。

GATE CITY OHSAKI

OHSAKI NEW CITY

目黒川
Outline
- 所在地
- 東京都品川区大崎2-11-2
- 交通
- JR山手線・埼京線・湘南新宿ライン・りんかい線「大崎」駅徒歩5分
- 竣工年月
- 2014年1月
- リフォーム完成
- 2026年2月中旬
- 階/階建
- 21階/地下2階地上25階
- 駐車場
- 【月額】28,000円~35,500円
- 構造/総戸数
- 鉄筋コンクリート造/204戸
- 管理
- 全部委託
- 管理費
- 【月額】24,014円
- 敷地権利
- 所有権
- 修繕積立金
- 【月額】18,400円
- 取引態様
- 売主
3LDK+WIC+SIC
◆2面採光の明るいLDK約16.4帖
◆WIC・SIC等充実の収納スペース
◆主寝室約6.5帖、WIC付
※図面・方位は概略に付き、現況と相違する場合は現況を優先します。

お問い合わせフォーム
下の各項目にご記入いただき送信ボタンを押して下さい。
当ページにてお問い合わせ頂く前に株式会社モリモト個人情報保護方針をお読み下さい。
お問い合わせモリモト リノベーション事業部
|0120-241-397
受付時間 /10:00~18:00
火曜日・水曜日定休






























