- R1住宅認定(予定)
- アフターサービス付(2年)
- 住宅ローン控除利用可
お問い合わせ・ご案内予約受付中
- 専有面積
- 85.98m²
- 所在地
- 神奈川県川崎市高津区溝口5-17-1
- 間取り
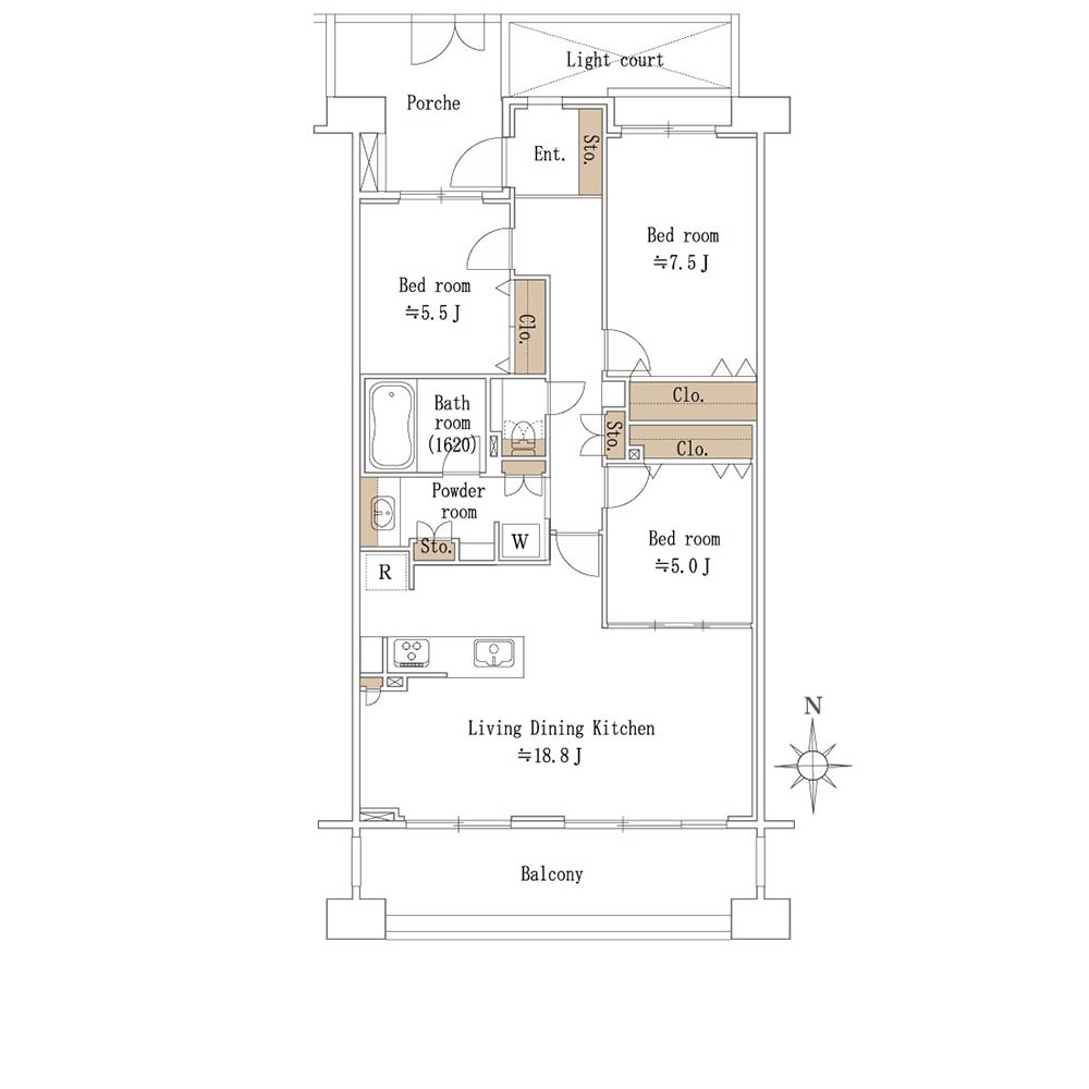
- 3LDK+玄関ポーチ
- 交通
- 東急田園都市線「高津」駅徒歩9分
- 価格
- 8,980万円
◆◆◆ 「高津駅」駅徒歩9分×85㎡超3LDKプラン◆◆◆
~南向きの明るいワイドなLDK18.8帖~
【RESIDENCE&LOCATION】
■田園都市線、大井町線「高津駅」徒歩9分
■田園都市線、大井町線「溝の口駅」徒歩13分
■南武線「武蔵溝ノ口駅」徒歩14分
■駅までフラットアプローチ
■閑静な居住エリアに立地
■「渋谷」「大手町」等快適な都心アクセス
■ライフ溝口店(約214m/徒歩約3分)
■ファミリーマートMG溝口六丁目店(約326m/徒歩約4分)
■川崎市立高津小学校(約227m/徒歩約3分)
■川崎市立西高津中学校(約452m/徒歩約6分)
■スターチャイルド高津溝口ナーサリー(約180m/徒歩約3分)
■帝京大学医学部付属溝口病院(約737m/徒歩約10分)
【PLAN&EQUIPMENT】
■総戸数167戸、7階建6階部分
■ゆとりある85.98㎡の3LDKプラン
■南向き18.8帖の開放感あるLDK
■逆梁アウトフレームの柱のない室内空間
■2.2mのハイサッシを採用
■玄関はプライバシー性の高いポーチ付き
■玄関には磁器質大判タイルを採用
■LD折り上げ天井・間接照明付
■浴室1620タイプ、浴室乾燥暖房機付
■宅配ロッカー付
【SUPREMOブランド】
■MORIMOTOによる最新デザインのリノベーション
■洗練された空間をつくりだすハイグレードな設備・仕様
※『SUPREMO(スプレーモ)』とは、デザイン、プランニング、
マテリアルや設備まで、都心のマンションディベロッパーとして培った
総合力と創造力でお届けするMORIMOTOのリノベーションブランドです。

溝の口

多摩川
Outline
- 所在地
- 神奈川県川崎市高津区溝口5-17-1
- 交通
- 東急田園都市線「高津」駅徒歩9分
- 竣工年月
- 2001年12月
- リフォーム完成
- 2026年4月中旬
- 階/階建
- 6階/7階
- 駐車場
- 【月額】13,000円~18,000円
- 構造/総戸数
- 鉄筋コンクリート造/167戸
- 管理
- 全部委託
- 管理費
- 【月額】11,440円
- 敷地権利
- 所有権
- 修繕積立金
- 【月額】19,600円
- 売主
- 株式会社モリモト
- 販売窓口
- 株式会社大京穴吹不動産(専任媒介)
■明るい横長のLDKは18.8帖
■ゆとりの主寝室7.5帖、ワイドなクローゼット付
■プライバシー性の高いポーチ付
※図面・方位は概略に付き、現況と相違する場合は現況を優先します。
















