- R1住宅認定(予定)
- アフターサービス付(2年)
- 住宅ローン控除利用可
お問い合わせ・ご案内予約受付中
- 専有面積
- 63.40m²
- 所在地
- 東京都目黒区中央町2-4-18
- 間取り
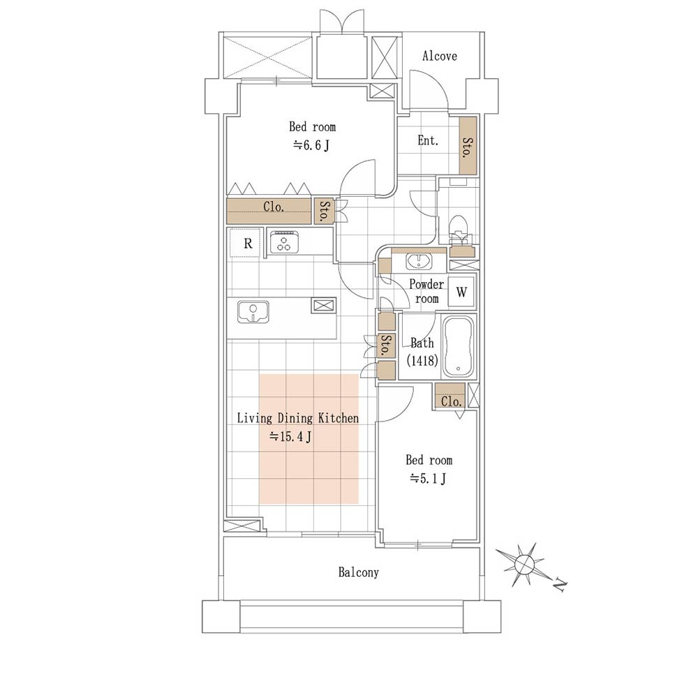
- 2LDK
- 交通
- 東急東横線「学芸大学」駅徒歩10分
東急東横線「祐天寺」駅徒歩10分 - 価格
- 14,800万円
◆◆◆ 「学芸大学」駅・「祐天寺」駅徒歩10分×デザインレジデンス◆◆◆
~三菱商事㈱旧分譲「The目黒四季レジデンス」~
【RESIDENCE】
■東急東横線「学芸大学」駅徒歩10分「祐天寺」駅徒歩10分
■「渋谷」「恵比寿」「中目黒」等都心の主要スポットにもアクセス良好
■旧目黒区役所・旧目黒区公会堂の跡地に建つ、三菱商事㈱旧分譲の由緒あるレジデンス
■「四季」をテーマにしたガーデンや緑あふれる設計背景を持ち、季節を感じる暮らしが可能
■外壁に天然石が使用された優雅な2層吹き抜けのメインエントランス
【PLAN&EQUIPMENT】
■63㎡の2LDKプラン
■LDK・玄関・廊下・水廻りにはイタリア製「Marazzi」タイルを採用
■開放感のあるオープンキッチンに変更
■ LD折り上げ天井・間接照明付
■木目調パネル張り(玄関・ホール壁)
■都心方面を一望・東京タワービュー
【COMMON SPACE】
■コートラウンジ・ゲストルーム
■車寄せ・ゲストパーキング
■トランクルーム(無償)
■24時間有人管理
■コンシェルジュサービス(一部有償)
■宅配ロッカー付
■24時間ゴミ出し可
【SUPREMOブランド】
■MORIMOTOによる最新デザインのリノベーション
■洗練された空間をつくりだすハイグレードな設備・仕様
※『SUPREMO(スプレーモ)』とは、デザイン、プランニング、
マテリアルや設備まで、都心のマンションディベロッパーとして培った
総合力と創造力でお届けするMORIMOTOのリノベーションブランドです。

学芸大学駅前

祐天寺駅前
Outline
- 所在地
- 東京都目黒区中央町2-4-18
- 交通
- 東急東横線「学芸大学」駅徒歩10分
東急東横線「祐天寺」駅徒歩10分 - 竣工年月
- 2005年11月
- リフォーム完成
- 2026年2月下旬
- 階/階建
- 5階/13階
- 駐車場
- 【月額】30,000円~42,000円
- 構造/総戸数
- 鉄筋コンクリート造/176戸
- 管理
- 全部委託
- 管理費
- 【月額】16,200円
- 敷地権利
- 所有権
- 修繕積立金
- 【月額】21,970円
- 売主
- 株式会社モリモト
- 販売窓口
- 三井不動産リアルティ株式会社(専任媒介)
2LDK+WIC
◆磁器質タイル貼りの床暖房付LDK
◆曲線を基調としたラウンドさせた空間デザイン
◆開放感のあるオープンカウンターキッチン
※図面・方位は概略に付き、現況と相違する場合は現況を優先します。



































