
基本プランは空間を有効活用することで部屋数を確保。さらに多彩なセレクトプランをご用意しました。
様々な使い方に対応できるよう、開口部の配置をはじめ細部まで緻密に設計。
将来まで見据え自分らしい空間を選べる住まいをご提案します。



□バルコニー面積/5.60m²[約1.69坪]
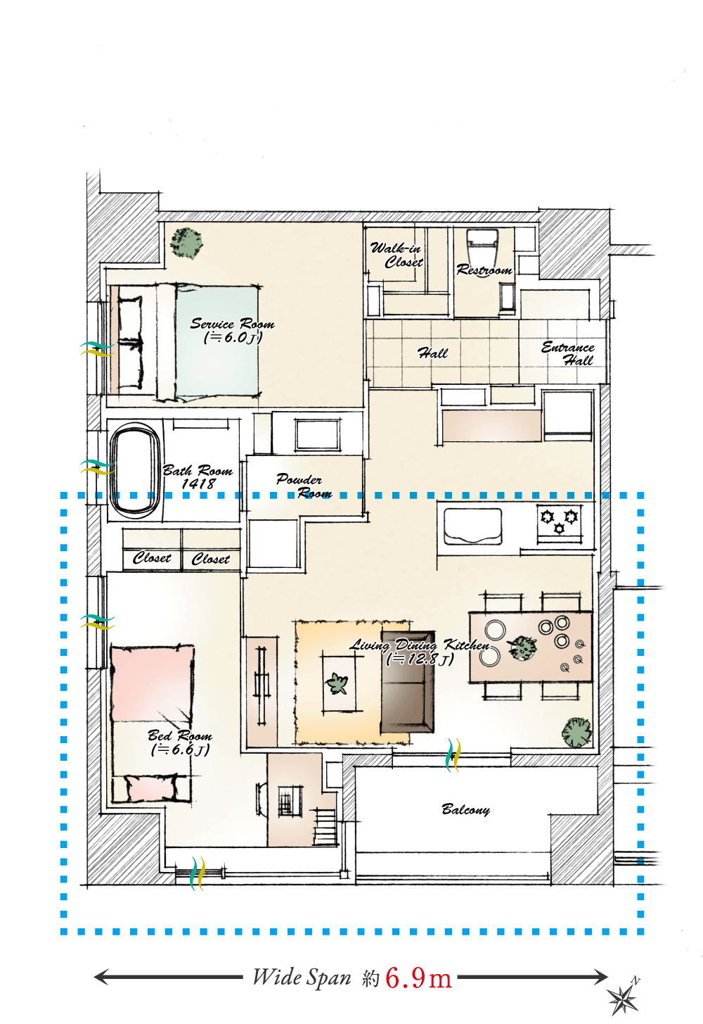
約56m²ながら3部屋を確保した南西角住戸プラン。サービスルームはウォークインクローゼットを設け、収納も充実。洋室(1)のコーナーサッシは採光、浴室の窓は通風に配慮しています。
リビング・ダイニングはゆったりと寛げる約12.8畳を確保。主寝室のほかスタディデスクが置ける洋室を設け、浴槽を拡張するなどファミリーも暮らしやすいプランとしました。
約19.1畳の広々としたリビング・ダイニング・キッチンとして活用。パーティーや趣味が楽しめるほか、家具が自在にレイアウトできるためコーディネートの幅が広がります。また浴槽も拡張し、ゆったり寛げます。

※無償のメニュープランにはお申込期限がございます。※掲載の図面は計画段階のものであり、変更となる場合がございます。予めご了承ください。※1.畳数はカウンター含む。