ディアナガーデン柿の木坂

P L A N

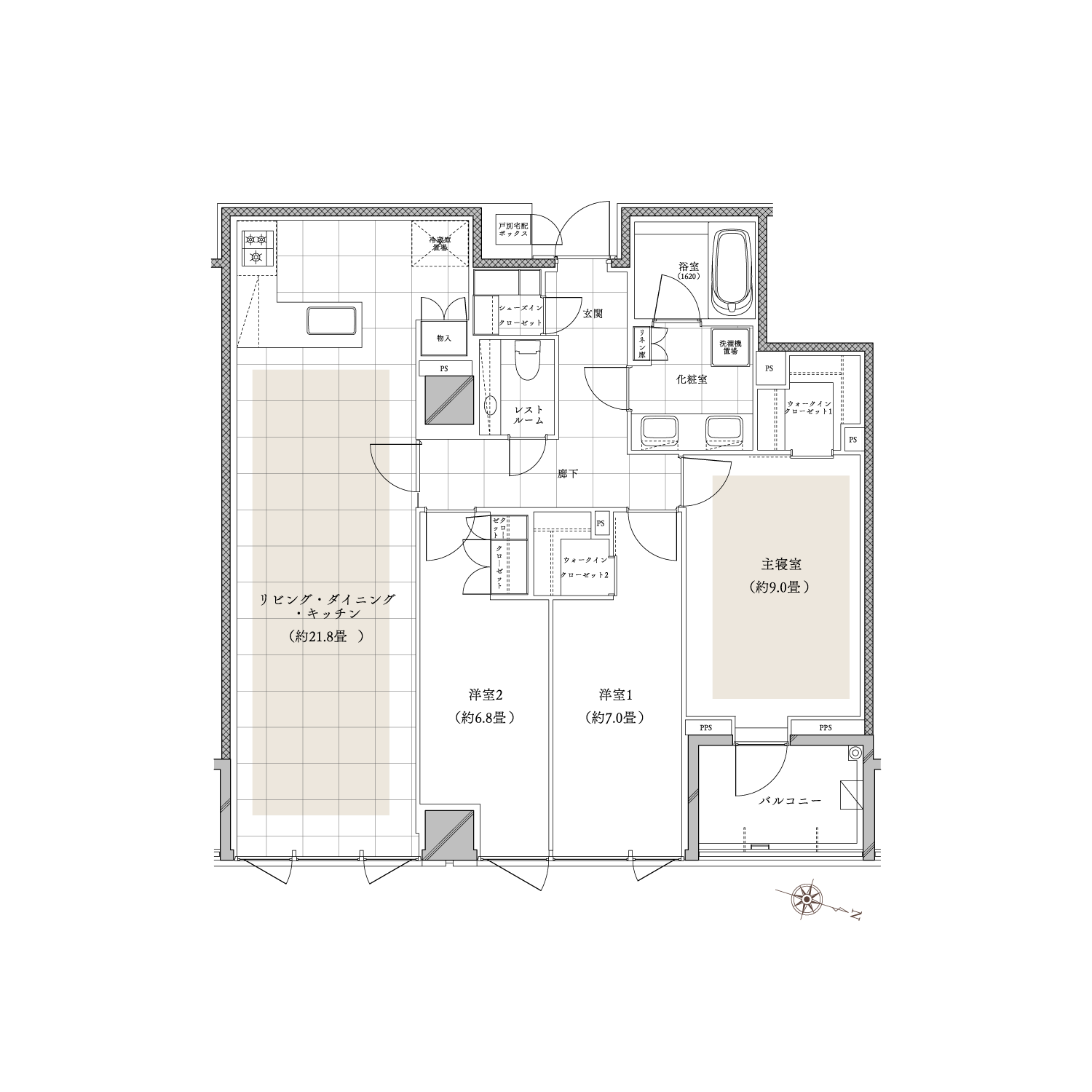
  • Ftype

  • 101.50m2
    3LDK+2WIC+SIC


  • バルコニー面積/5.53m2

F

Premium Class

  • image photo

    玄関廊下/600角タイル貼り・廊下壁両面突板パネル
    ※カラーセレクトにより色柄が異なります。
  • image photo

    フィオレストーンキッチン天板
    ※カラーセレクトにより色柄が異なります。
  • image photo

    浄水器一体型シャワー水栓
  • image photo

    三口コンロ
  • image photo

    レストルーム
  • image photo

    浴室
  • image photo

    陶器製ハーフベッセルボウル
  • image photo

    天井カセット型エアコン(リビング・主寝室)
  • image photo

    ディスポーザー