ディアナガーデン柿の木坂

P L A N

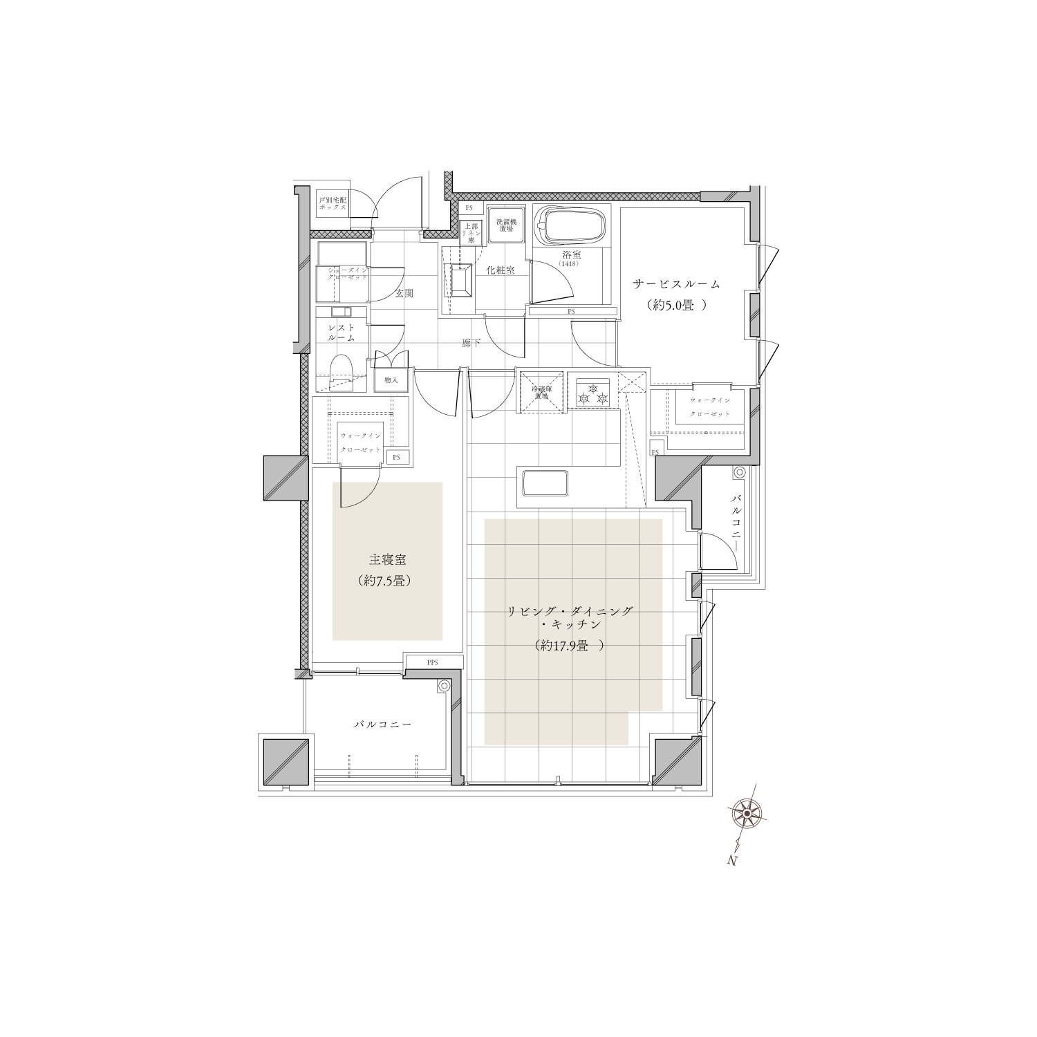
  • Btype

  • 70.68m2
    1LDK+S+2WIC+SIC


  • バルコニー面積/7.35m2

B

Advanced Class

  • image photo

    玄関廊下/600角タイル貼り・廊下壁片面木調パネル
    ※色柄が異なります。
  • image photo

    フィオレストーンキッチン天板
    ※カラーセレクトにより色柄が異なります。
  • image photo

    浄水器一体型シャワー水栓
  • image photo

    三口コンロ
  • image photo

    レストルーム
  • image photo

    浴室
  • image photo

    陶器製ハーフベッセルボウル
  • image photo

    天井カセット型エアコン(リビング)
  • image photo

    ディスポーザー